Toutes nos annonces


Recherche par référence
Secteur
Type de bien

105 350 € H.A.I.*
*dont honoraires : 5.35 % TTC (à la charge de l'acquéreur)
SAINT SAUVEUR LE VICOMTE, au cœur du bourg.Maison de bourg, avec petite cour et garage.105 350 € H.A.I.*
*dont honoraires : 5.35 % TTC (à la charge de l'acquéreur)

Nouveauté
Réf : 3294Secteur : Saint Sauveur le VicomteType de bien : Maisons
Maison de bourg (lot n°2), en copropriété de deux lots , comprenant :

- Au rez de chaussée : entrée sur un séjour/salon avec poêle à granulés (d’env. 25,60 m²), une cuisine (d’env. 23,30 m²).
- Au premier étage : une chambre (d’env. 20,30 m²), en enfilade une chambre (d’env. 9 m²), un bureau (d’env. 11 m²), une salle d’eau avec WC, une chambre (d’env. 18,70 m²).
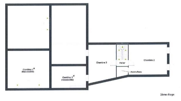
- Au deuxième étage : deux chambres (d’env.16,50 m² et 16 m²), dont une avec un lavabo.

Surface habitable d’environ 155 m².

Taxe foncière : 1370€ / an.

Pompe à chaleur (2021). Ballon thermodynamique. Huisserie PVC double vitrage (2018). Electricité revue. Poêle à granulés (2023)

Une courette et un garage (d’env. 26 m²) avec grenier.

Le tout (copropriété) sur 188 m².

Les informations sur les risques auxquels ce bien est exposé sont disponibles sur le site georisques,gouv,fr

Copropriété: 2 lots, pas de procédure en cours.
Voir la ficheLe séjour
Voir la ficheLa cuisine
Voir la ficheLes chambres au premier étage
Voir la fiche
Voir la fiche
Voir la ficheLa salle de bain
Voir la ficheLes chambres au deuxième étage
Voir la fiche
Voir la ficheLa courette.
Voir la ficheLe RDC (photo non contractuelle).
Voir la ficheLe 1er étage (photo non contractuelle).
Voir la ficheLe 2ème étage (photo non contractuelle).
Voir la fiche
consommation208kWh/m².an
émissions6*kg CO2/m².an
logement très
performant
A
B
C
D
E
F
G
logement extrêmement
consommateur d'énergie
6kg CO2/m².an
peu d'émissions
de CO2
A
B
C
D
E
F
G
émissions de CO2
très importantes
* Dont émissions de gaz à effet de serre

Nos AgencesDes biens d’exception au alentours de Cherbourg-en-Cotentin

Bricquebec 2 rue Estouteville
50260 Bricquebec
Plan d'accès
Tél : 02 33 04 16 42
Saint-Sauveur-le-Vicomte 36 rue Bottin Desylles
50390 St-Sauveur-Le-Vicomte
Plan d'accès
Tél : 02 33 40 35 11
Portbail-sur-Mer 38 rue Philippe Lebel
50580 Portbail-sur-Mer
Plan d'accès
Tél : 02 33 04 84 80